Appartamento in affitto - Avenue François- Besson 15, 1217 Meyrin
Perché amerai questa proprietà
Accesso con ascensore al 2° piano
Cucina indipendente spaziosa
Vicino a servizi e parchi
Organizza una visita
Prenota una visita con Service oggi!
Appartamento 3.5 stanze
Appartamento di 3.5 stanze nella zona di Meyrin
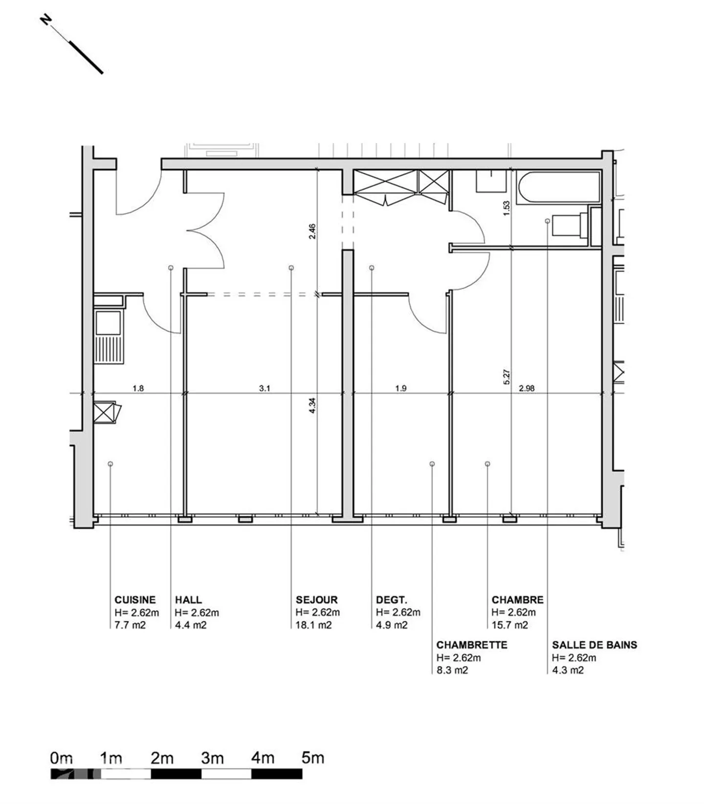
Vieni a visitare questo bel appartamento di 3.5 stanze al 2° piano di un edificio risalente agli anni '60 con ascensore. L'alloggio è composto da un ingresso con ripostigli, un soggiorno doppio, una cucina indipendente, una camera da letto, una cameretta e un bagno con attacco per la lavatrice (solo l'attacco, la lavatrice non è fornita). Una cantina completa il tutto. L'edificio dispone di una lavanderia comune per entrambi i corridoi ed è situato...
Ripartizione dei costi
- Affitto netto
- CHF 1’921
- Costi aggiuntivi
- CHF 150
- Totale delle locazioni
- CHF 1’921
Dettagli immobile
- Disponibile dal
- Su accordo
- Stanze
- 3.5
- Superficie abitabile
- 63 m²



