Espace de stockage à louer - Gewerbestrasse, 4123 Allschwil
Pourquoi vous aimerez ce bien
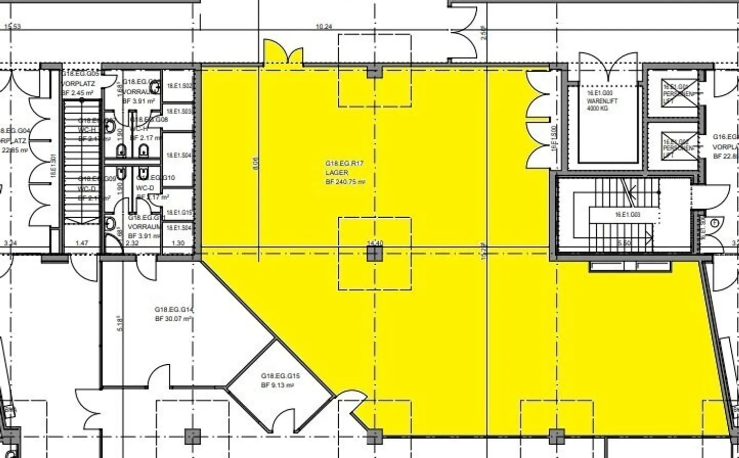
Espace de 241 m²
Étagères en option
Places de parking à louer
Organiser une visite
Réserver une visite avec Monika aujourd'hui !
Entrepôt spacieux dans le quartier de bachgaben
La propriété Gewerestr. 12-18, Allschwil est située au centre du quartier de Bachgraben.
La surface de stockage dispose de 241 m2. Si vous le souhaitez, diverses étagères, etc. peuvent être reprises.
De plus, des places de parking sont disponibles à la location dans la propriété.
Avons-nous éveillé votre intérêt? Contactez-nous pour plus d'informations ou pour organiser une visite sans engagement. Nous nous réjouissons de votre demande!
storabble est une plateforme de comparaison pour les espace...
Détail des loyers
- Loyer net
- CHF 2’127
- Coûts supplémentaires
- CHF 419
- Total des loyers
- CHF 2’127
Détails du bien
- Disponible à partir de
- Sur accord
- Année de construction
- 1990
- Surface habitable
- 241 m²
- Surface utilisable
- 241 m²



