Bureau à louer - Seefeldstrasse 152, 8008 Zürich
Pourquoi vous aimerez ce bien
Espace de travail lumineux
Cuisine partagée & balcon
Accès par ascenseur au 2ème étage
Organiser une visite
Réserver une visite avec maison.work aujourd'hui !
Commercial à louer, seefeldstrasse 152 (zürich, suisse)
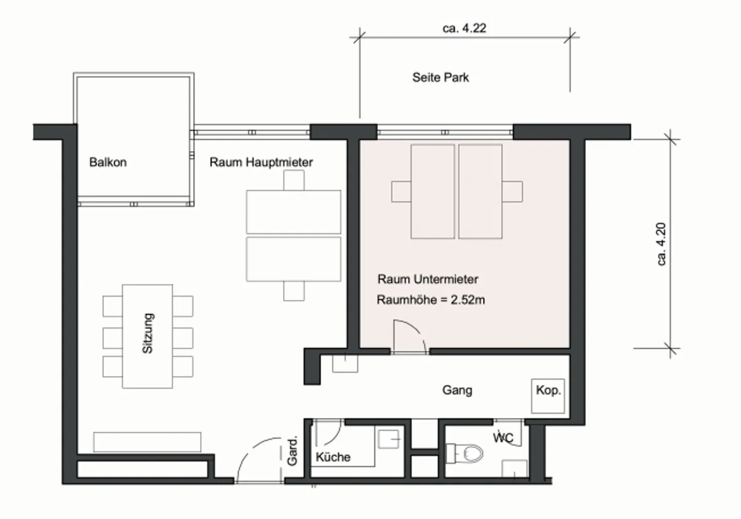
Dans notre petit bureau d'architecture à Seefeld (2 employés à temps partiel), une pièce séparée et verrouillable est disponible à la sous-location. Elle offre de la place pour environ 2 postes de travail. Le début de la location est possible immédiatement. Le bâtiment représentatif et l'emplacement à Seefeld sont au top
Infos:
- Seefeldstrasse 152, 8008 Zürich, 2ème étage avec ascenseur
- 2 bureaux de travail seraient disponibles
- Utilisation partagée : WC séparé avec lavabo (pas de douche), peti...
Détails du bien
- Disponible à partir de
- Sur accord
- Surface habitable
- 17 m²
- Surface utilisable
- 17 m²



