Appartement à louer - Normannenstrasse, 3018 Bern
Pourquoi vous aimerez ce bien
Salon lumineux avec vue
Cuisine moderne avec bar
Cave privée et accès par ascenseur
Organiser une visite
Réserver une visite avec Michael aujourd'hui !
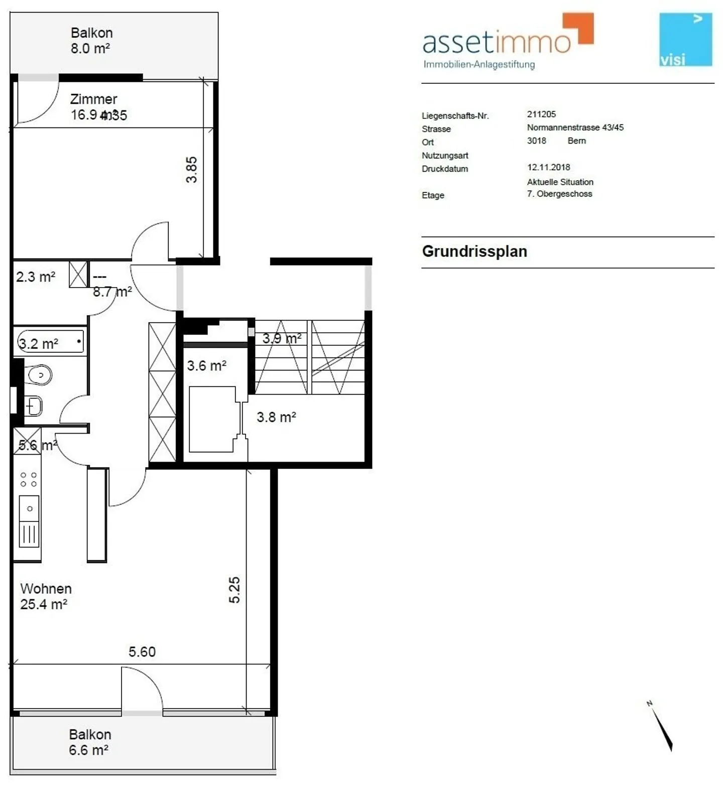
Appartement de 2.5 pièces de 62 m² au 7ème étage avec balcon
À partir du 16 février 2026, nous louons un appartement moderne de 2.5 pièces de 62 m² au 7ème étage. L'appartement est équipé comme suit :
- Cuisine avec plaque vitrocéramique, grand réfrigérateur, lave-vaisselle, comptoir de bar et carrelage facile d'entretien
- Salle de bain avec armoire encastrée pratique et carrelage
- Grand et lumineux salon avec large baie vitrée
- Parquet dans le salon et la chambre (sera poncé + vitrifié)
- Peinture entièrement refaite avant la relocation
- Balcon avec vue dé...
Détail des loyers
- Loyer net
- CHF 1’660
- Coûts supplémentaires
- CHF 220
- Total des loyers
- CHF 1’660
Détails du bien
- Disponible à partir de
- 16.02.2026
- Pièces
- 2.5
- Année de construction
- 1966
- Surface habitable
- 62 m²
- Étage
- 7ème



