Appartement à louer - Baselstrasse 72, 4153 Reinach BL
Pourquoi vous aimerez ce bien
Terrasse spacieuse pour se détendre
Cuisine ouverte avec salle à manger
Maison Minergie écologique
Organiser une visite
Réserver une visite aujourd'hui !
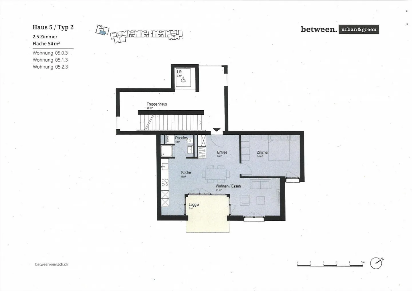
Appartement de jardin 2,5 pièces (rez-de-chaussée) avec terrasse + tour de lavage privé
Nous louons cet appartement moderne de 2,5 pièces avec terrasse à partir du 1er février 2026 ou plus tôt, avec la répartition suivante :
- Entrée avec placard
- Cuisine ouverte équipée avec grand coin repas et salon avec accès à la terrasse (côté jardin)
- Douche/WC/lavabo avec tour de lavage
- 1 chambre
Toutes les pièces sont équipées de carrelage ou de parquet.
Étant donné qu'il s'agit d'une maison Minergie, l'appartement est équipé de chauffage au sol.
Une place de parking (avec ou sans utilisation ...
Détail des loyers
- Loyer net
- CHF 1’730
- Coûts supplémentaires
- CHF 210
- Total des loyers
- CHF 1’730
Détails du bien
- Disponible à partir de
- Sur accord
- Pièces
- 2.5
- Année de construction
- 2024
- Surface habitable
- 54 m²
- Étage
- Rez



