Appartement à louer - Burgbühl 68, 1713 St. Antoni
Pourquoi vous aimerez ce bien
Balcon spacieux orienté sud
Cuisine moderne ouverte
Quartier calme idéal pour familles
Organiser une visite
Réserver une visite aujourd'hui !
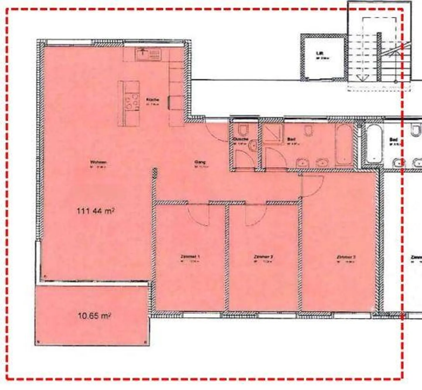
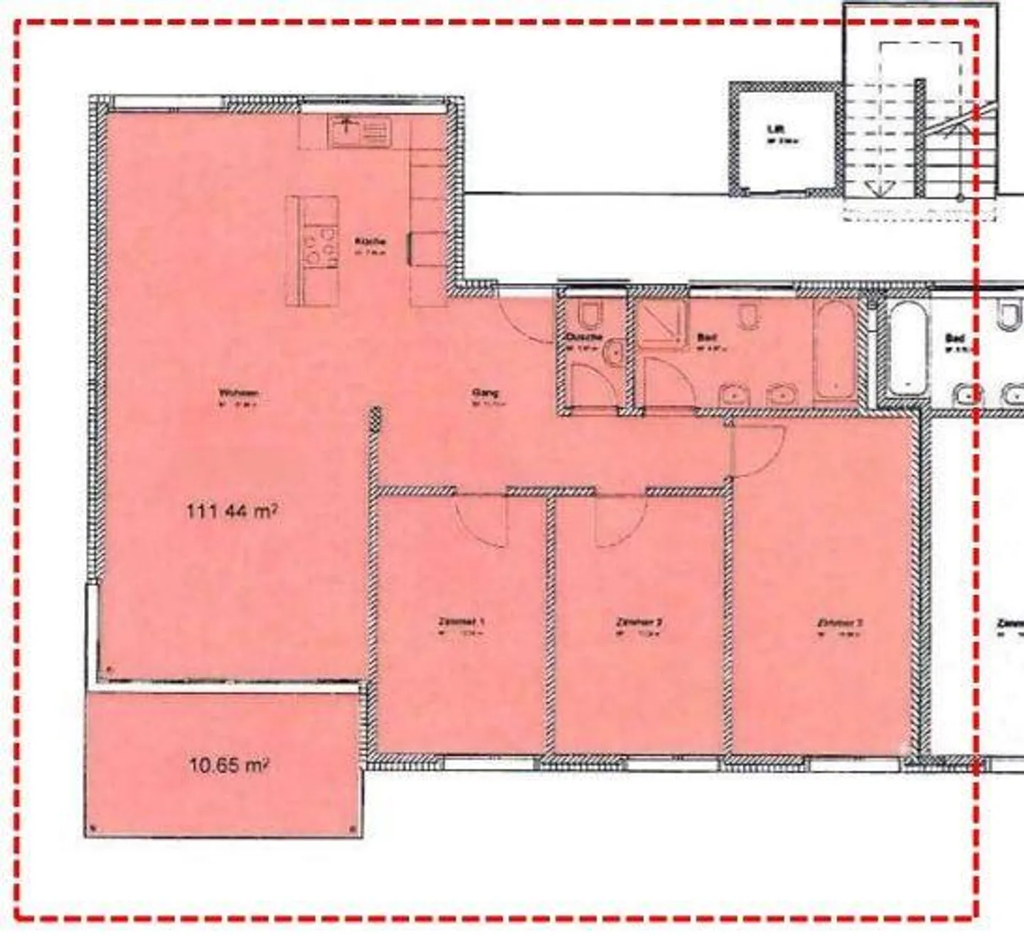
Appartement de rêve 4.5 - 2e étage / bel appartement de 4.5 pièces - 2e étage
Superbe appartement 4.5 pièces - 2e étage - 111 m² + balcon - St. Antoni (Burgbühl 68)
Disponible dès le 15 février 2026 - Loyer total CHF 1900.-
2e étage - Immeuble construit en 2007
Immeuble moderne, situé en retrait du trafic, dans un environnement calme et très ensoleillé, avec vue dégagée sur le Senseland
Cadre de vie & situation
Quartier résidentiel paisible, idéal pour familles
Orientation plein sud, excellent ensoleillement
Village, commerces et administration à 400 m
Description du logement
Détails du bien
- Disponible à partir de
- Sur accord
- Pièces
- 4.5
- Surface habitable
- 111 m²



