Appartement à louer - Langenhagweg 28a, 4123 Allschwil
Pourquoi vous aimerez ce bien
Chambres lumineuses avec parquet
Grand balcon pour vivre dehors
Système de chauffage écologique
Organiser une visite
Réserver une visite avec Kim aujourd'hui !
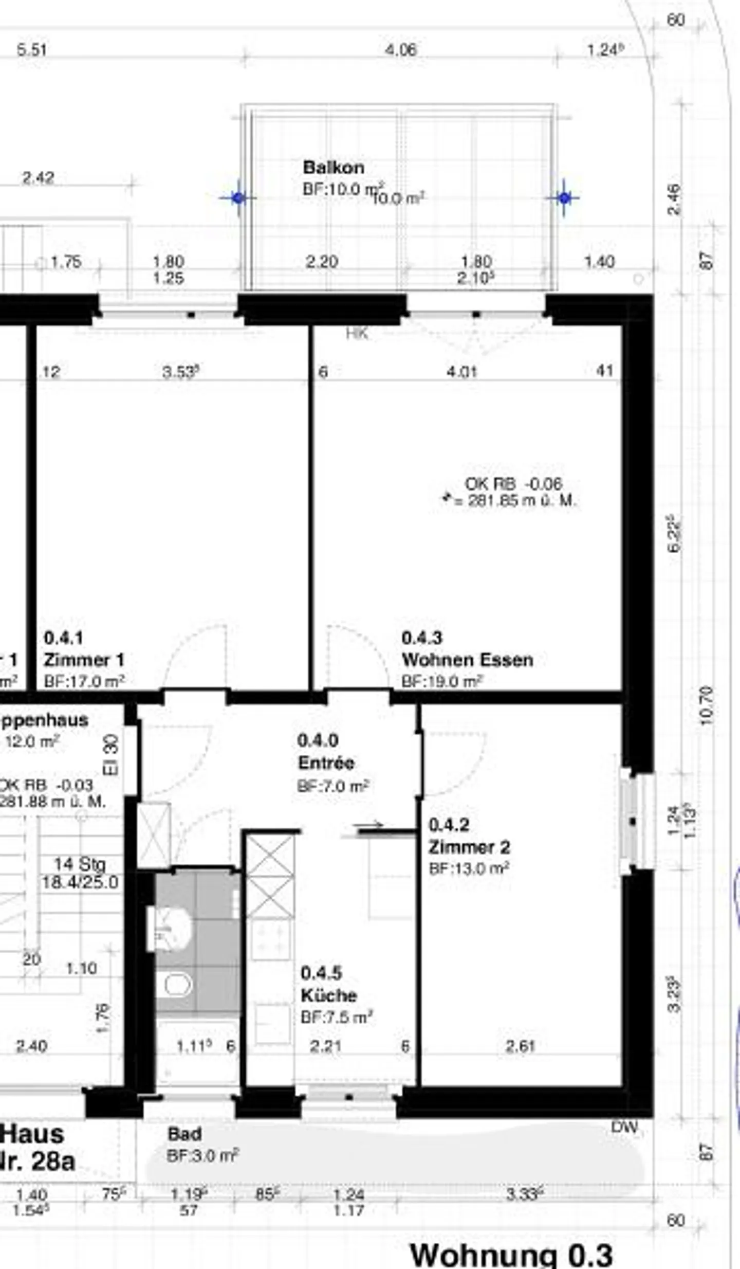
Première location : vivre dans un endroit calme au rez-de-chaussée surélevé
L'appartement partiellement rénové est situé dans une rue latérale calme, près de la limite de la ville. Les commerces, les arrêts de tram et de bus sont accessibles à pied. La zone de loisirs « Allschwiler Wald » est accessible à pied en peu de temps.L'appartement a un plan pratique et des pièces lumineuses et spacieuses. Tous les salons et chambres, ainsi que l'entrée, sont équipés de parquet en chêne. La cuisine et la salle de bain ont des carreaux de céramique modernes et faciles d'entretien...
Détail des loyers
- Loyer net
- CHF 1’870
- Coûts supplémentaires
- CHF 190
- Total des loyers
- CHF 1’870
Détails du bien
- Disponible à partir de
- Sur accord
- Pièces
- 3
- Année de rénovation
- 2025
- Surface habitable
- 66 m²
- Étage
- 1er



