Villa à vendre - Via Cadempina 8, 6814 Cadempino
Pourquoi vous aimerez ce bien
Jardin privé spacieux
Cuisine moderne avec appareils
Chambre flexible avec entrée séparée
Organiser une visite
Réserver une visite avec New aujourd'hui !
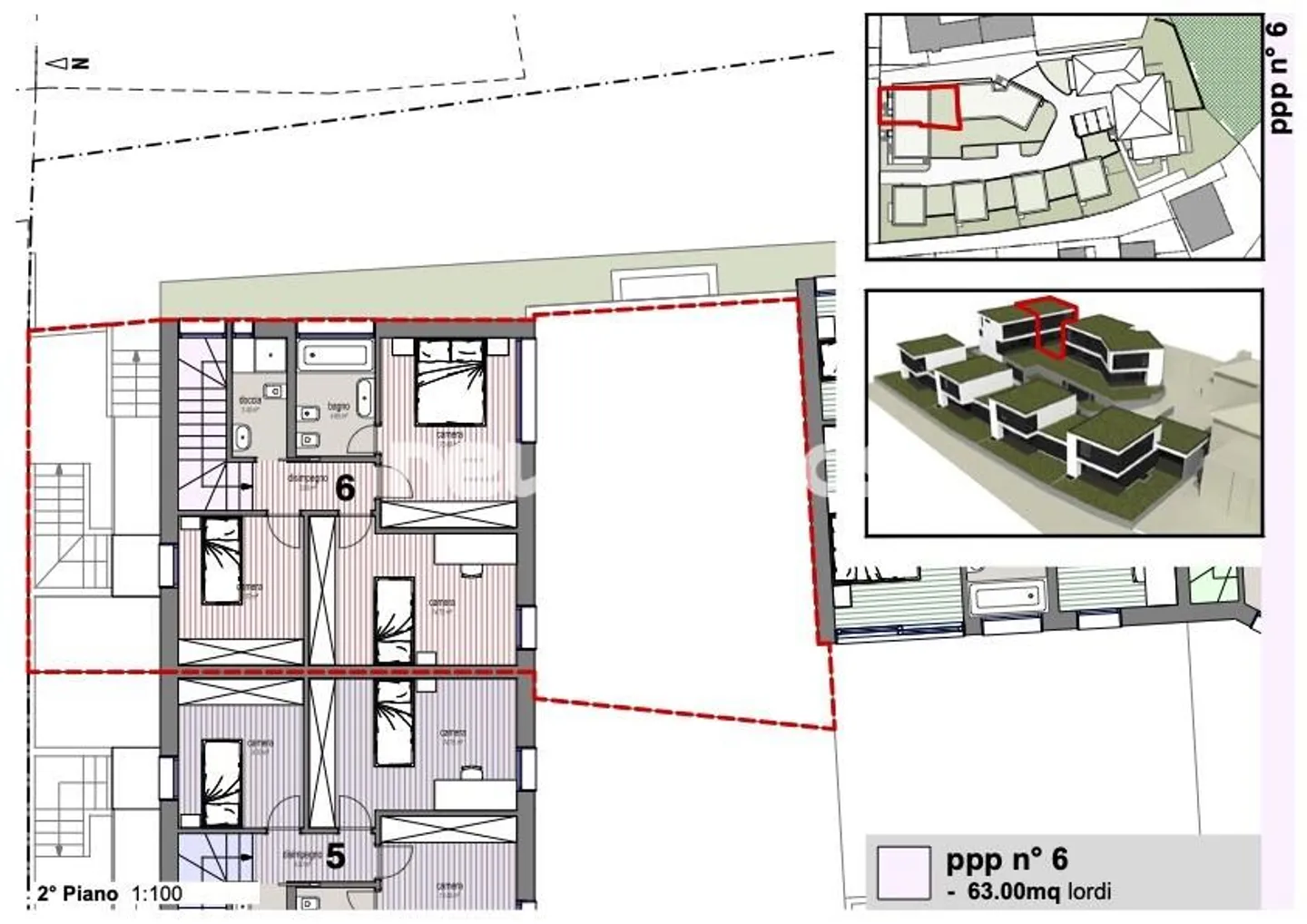
Cadempino, 4,5 nouvelles chambres avec jardin privé
Au cœur du calme et ordonné Cadempino, un projet résidentiel moderne est en train de se développer, conçu pour ceux qui recherchent une maison fonctionnelle, lumineuse et élégante qui intègre harmonieusement la vie quotidienne.
La villa s'étend sur 3 niveaux, avec l'entrée au rez-de-chaussée s'ouvrant directement sur la cuisine : un espace moderne et bien organisé, équipé de tous les appareils nécessaires et conçu pour être le centre de la vie quotidienne.
De là, une grande ouverture mène au jardi...
Détails du bien
- Disponible à partir de
- 28.11.2025
- Pièces
- 4.5
- Année de construction
- 2025
- Année de rénovation
- 2025
- Surface habitable
- 130 m²
- Surface utilisable
- 143 m²



