Atelier à vendre - 1868 Collombey
Pourquoi vous aimerez ce bien
Hauteur sous plafond: 4,9 m
Agencements personnalisables
Accès Internet fibre optique
Organiser une visite
Réserver une visite aujourd'hui !
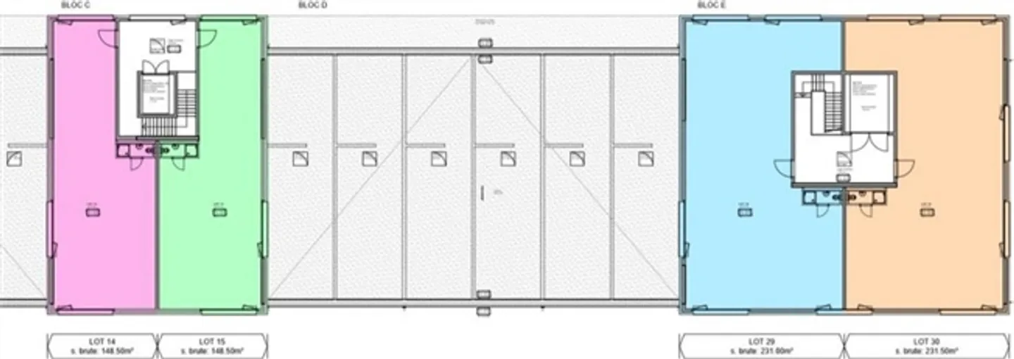
Halls industriels, surfaces et dimensions selon les besoins.
Halls industriels, surfaces et dimensions sur demande.
Nous disposons de plusieurs halls indépendants avec la possibilité de regrouper différents lots.
- Accès véhicule par porte sectionnelle de 3,2 x 4,1 m ou 4 x 4,1 m selon le lot
- Hauteur intérieure : 4,9 m
- Charge de sol : 1 000 kg par m2
- Ajustements à la discrétion des locataires
- Intensité du courant : intensité élevée possible
- Internet fibre optique
- Places de parking disponibles
Construction traditionnelle avec murs porteurs et façades ...
Détails du bien
- Disponible à partir de
- Sur accord
- Pièces
- 2



