Attique à vendre - Chemin Du Milieu 71, 1920 Martigny
Pourquoi vous aimerez ce bien
Terrasse spacieuse de 28 m²
Jardin privé de 71 m²
Normes MINERGIE de haute qualité
Organiser une visite
Réserver une visite avec Victoria aujourd'hui !
Appartement 3,5 pièces à martigny
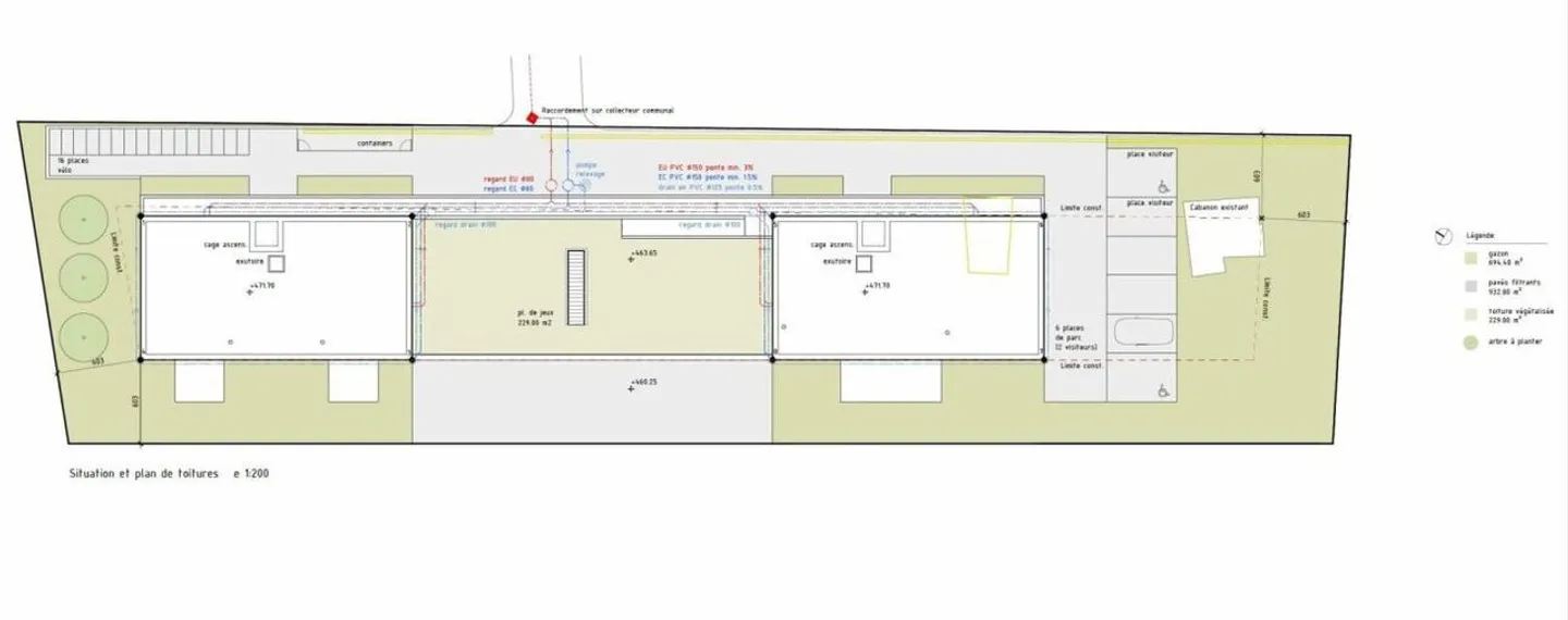
À vendre dans une nouvelle promotion de 16 appartements, magnifique appartement de 3,5 pièces au rez-de-chaussée avec une terrasse de 28 m2 et un jardin de 71 m2.
L'emplacement vous permet de profiter de l'espace vert environnant et de l'environnement calme.
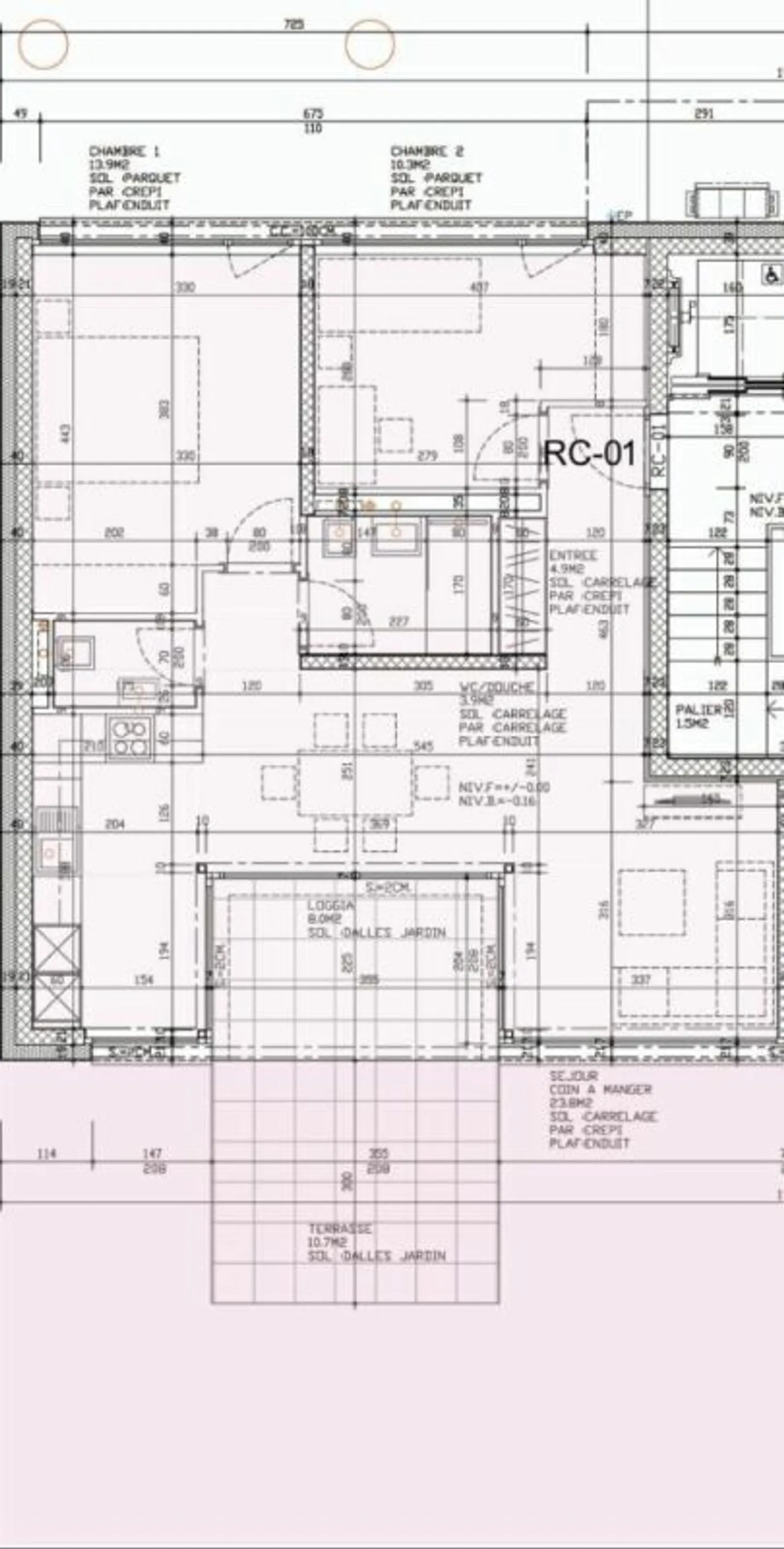
Cet appartement de 4,5 pièces de 115 m2 au rez-de-chaussée se compose de :
* Entrée avec placards intégrés
* Cuisine ouverte
* Véranda de 12,9m2
* Salon avec accès au jardin et à la terrasse
* 2 chambres
* Salle de bain avec WC
* Douche avec WC
* Cave...
Détails du bien
- Disponible à partir de
- 30.09.2025
- Pièces
- 3.5
- Année de construction
- 2025
- Surface habitable
- 71 m²
- Surface utilisable
- 71 m²
- Étage
- Rez
- Étages du bâtiment
- 3



