Appartement à vendre - 1773 Léchelles
Pourquoi vous aimerez ce bien
Cuisine équipée Miele
Terrasse privée de 14 m²
Matériaux de qualité utilisés
Organiser une visite
Réserver une visite aujourd'hui !
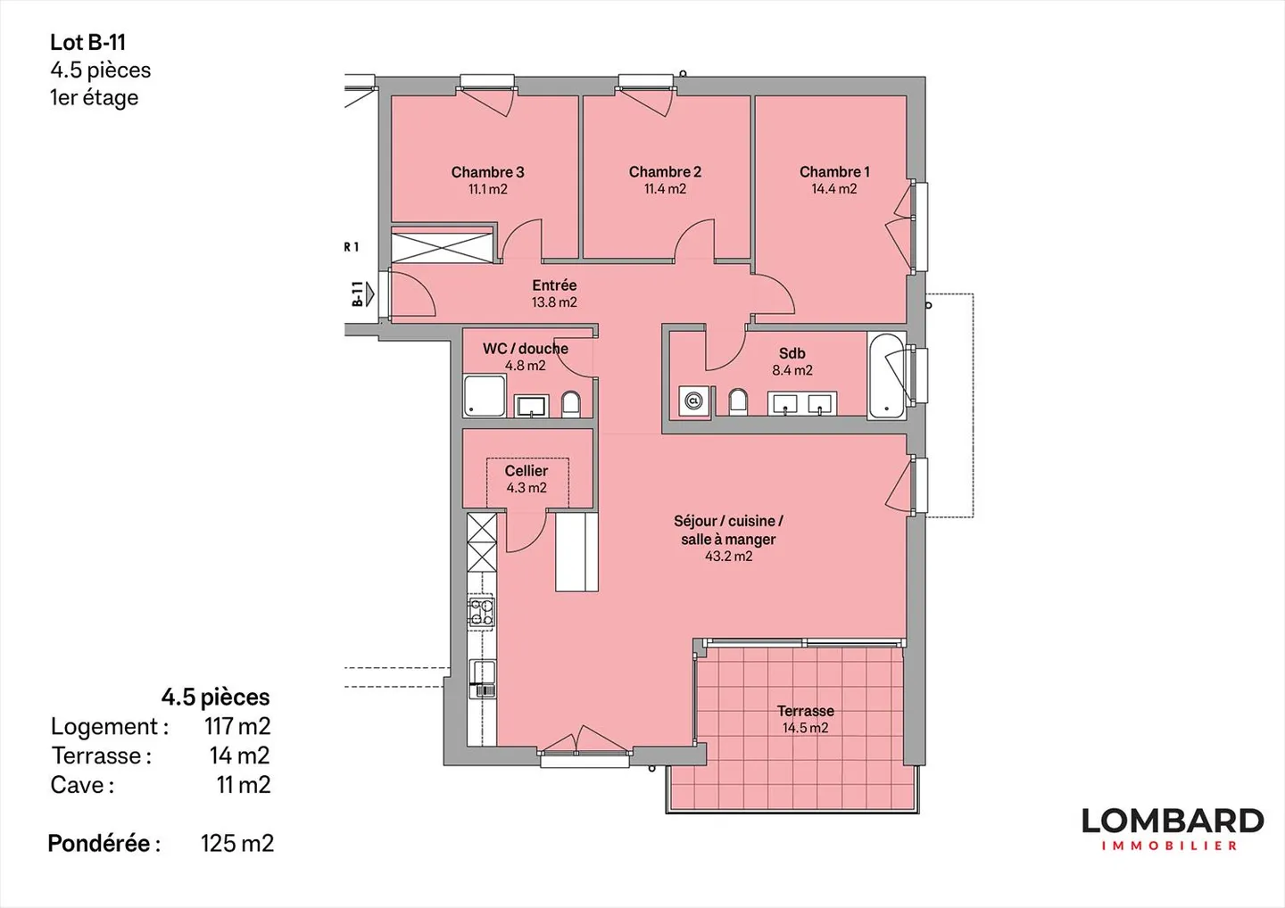
Appartement 4.5 pièces
Appartement neuf de 4.5 pièces au 1er étage
À vendre à Léchelles : magnifique appartement neuf de 4.5 pièces au 1er étage (Bâtiment B) situé dans un petit immeuble de 9 lots avec ascenseur.
Découvrez la nouvelle promotion << Résidences des Hirondelles >> située à Léchelles. Le chantier a démarré et la livraison des appartements est prévus pour la fin d'année 2025.
* Grand appartement de 4.5 pièces de 125 m2 de surface
* Cuisine entièrement équipée (Miele)
* 2 salles de bains
* Armoires de ...
Détails du bien
- Disponible à partir de
- Sur accord
- Pièces
- 4.5
- Salles de bain
- 2
- Surface habitable
- 125 m²




