Attique à vendre - Haldenweg 17, 4450 Sissach
Pourquoi vous aimerez ce bien
Vue panoramique dégagée
Accès direct à l'ascenseur
Concept énergétique durable
Organiser une visite
Réserver une visite avec Boog aujourd'hui !
Dans l'un des plus beaux et meilleurs emplacements de Sissach, nous créons de nouveaux et élégants biens résidentiels avec une variété de points forts pour vous :
Vue panoramique dégagée
Situé au début du Sissacher Sonnenhang avec une orientation sud optimale
Emplacement central et calme à distance de marche du centre du village
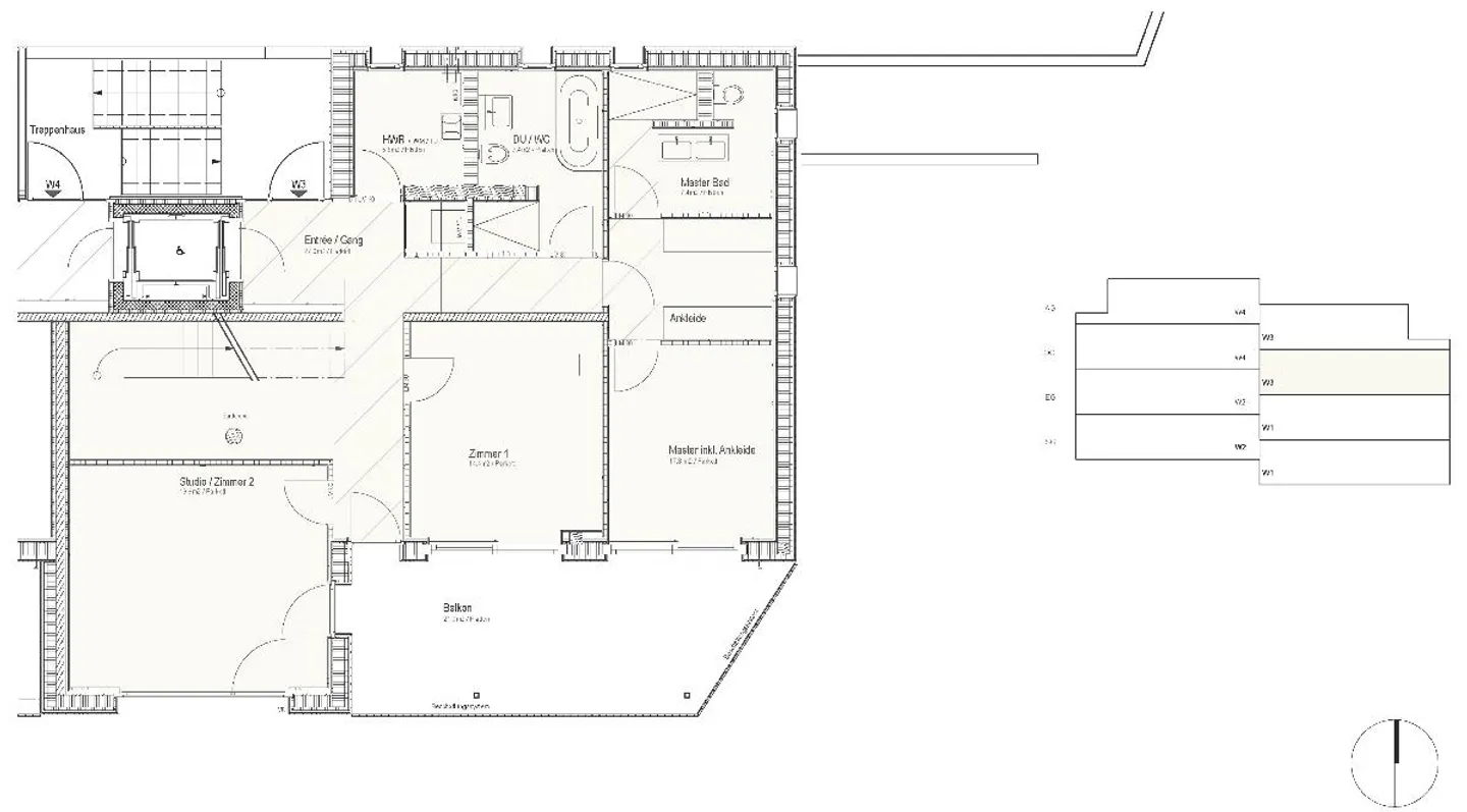
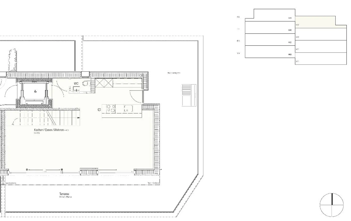
Appartement en duplex spacieux avec accès direct à l'ascenseur aux deux étages - accueillez vos invités et amis directement dans le penthouse élégant
Intégration de l'ap...
Détails du bien
- Disponible à partir de
- Sur accord
- Pièces
- 4.5
- Année de construction
- 2026
- Étage
- 2ème



