Office space for rent - Hegnaustrasse 60, 8602 Wangen b. Dübendorf
Why you'll love this property
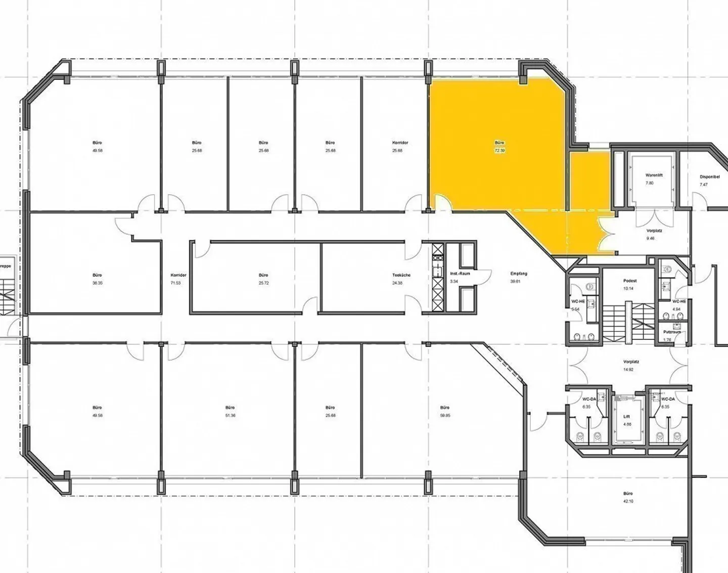
Spacious 84 m² office
Large windows for natural light
Access to kitchen and lift
Arrange a visit
Book a visit today!
Attractive location with very good infrastructure
In a representative commercial building in 8602 Wangen ZH (near Brüttiseller-Kreuz) we rent:
A bright and sunny office space of approx. 84 m2 divided into two areas with direct access to the goods lift. Large windows provide plenty of light and a good atmosphere for working. The office has practical built-in cupboards and is equipped with a new carpet.
There is a floor kitchen, toilets, and a passenger lift available.
Parking spaces in the UN garage can be rented additionally.
If you are interested,...
Costs breakdown
- Net rent
- CHF 1’195
- Additional costs
- CHF 250
- Total rent
- CHF 1’195
Property details
- Available from
- By agreement
- Construction year
- 1988
- Living surface
- 84 m²


