Office space for rent - Strehlgasse 12, 6430 Schwyz
Why you'll love this property
Historic building charm
Central location with amenities
Three customer parking spots
Arrange a visit
Book a visit today!
Characterful commercial space in the heart of schwyz
Characterful commercial space in the heart of Schwyz Here you can work
In the center of Schwyz, the historic property with beautifully developed historical office space on the ground floor is located.
The main square of Schwyz, banks, post office, shopping, restaurants, and public transport are easily accessible on foot. A public parking garage is located opposite the property (MythenForum Schwyz parking garage).
Your new workplace?
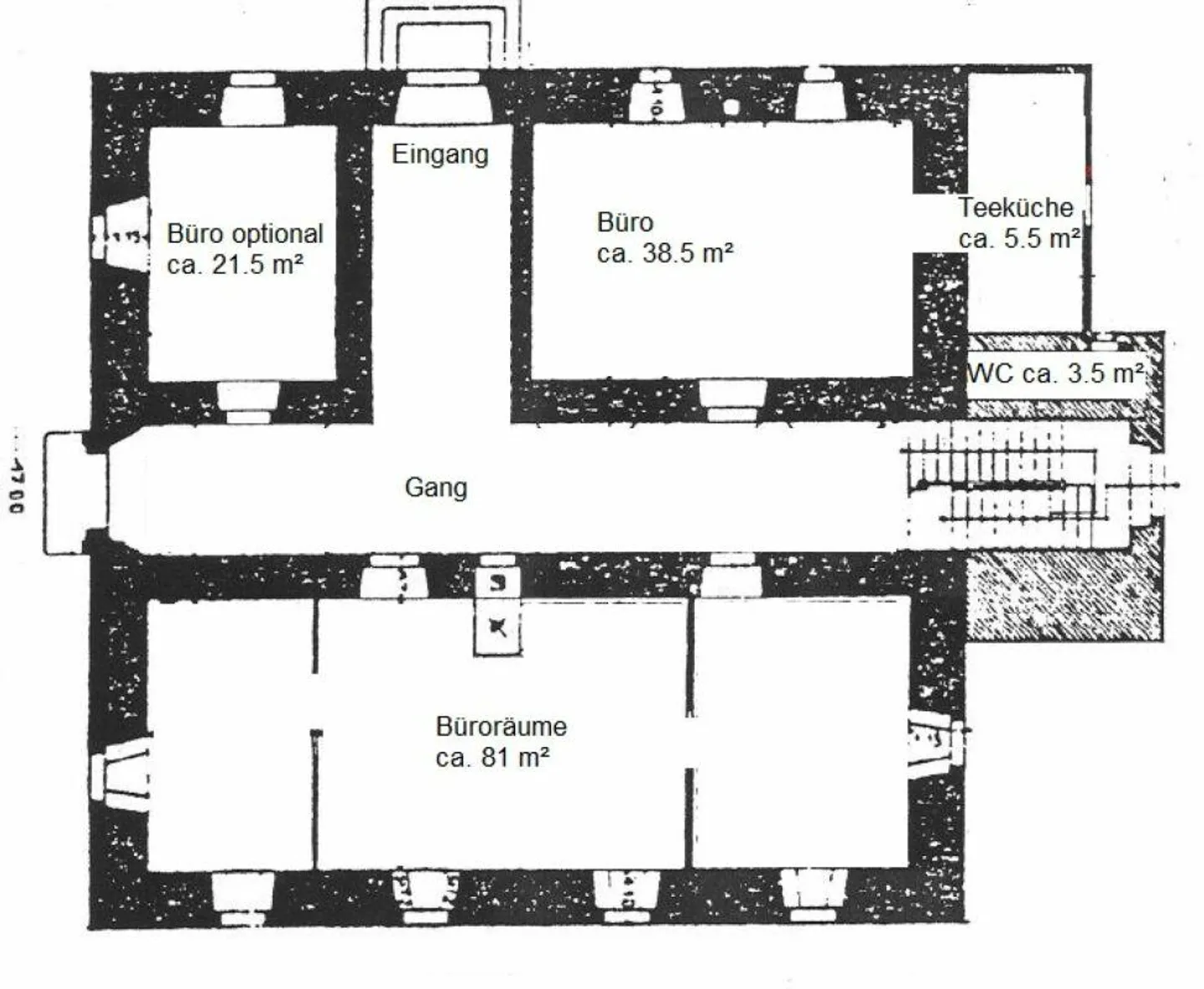
The approximately 129 m² large office space is located on the groun...
Costs breakdown
- Net rent
- CHF 2’750
- Additional costs
- CHF 350
- Total rent
- CHF 2’750
Property details
- Available from
- By agreement



