Villa for sale - Milieu Du Village 37, 2932 Coeuve
Why you'll love this property
Energy-efficient design
Spacious 64 m² living area
Large terrace with southern view
Arrange a visit
Book a visit with Monique today!
Villa 5.5 rooms
Villa
FIND ALL OUR PROPERTIES ON OUR WEBSITE, WWW.NEU-IMMO.CH
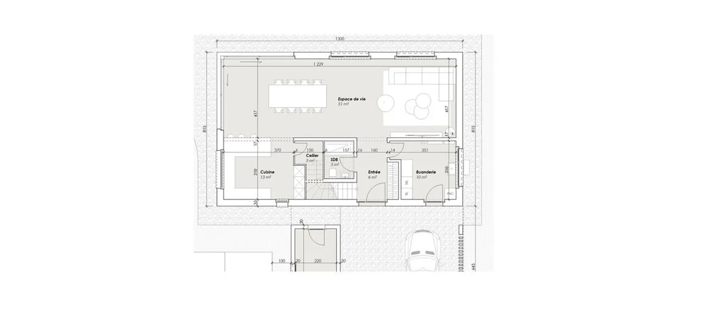
This wooden frame house will be completed in mid-2025 on a plot of 691 m2.
It is located in the center of the village and completely oriented to the south.
The design of the envelope has been calculated to achieve the best equation: quality-price-energy consumption and the energy label P. The electrical part is designed to minimize negative health effects.
With a living area of 171 m2, this villa is spread over two floors. The living ...
Property details
- Available from
- By agreement
- Rooms
- 5.5
- Living surface
- 171 m²



