Apartment for sale - Rue Des Prés Du Moulin, 1920 Martigny
Why you'll love this property
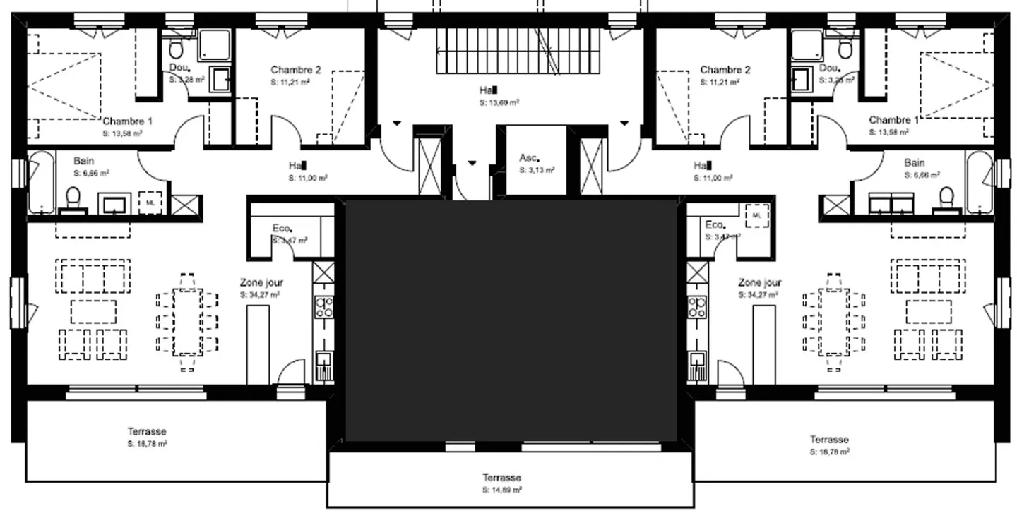
19m2 balcony for relaxation
Eco-friendly heating system
Customizable finishes available
Arrange a visit
Book a visit with Lucie today!
New promotion: 3.5 rooms on the 1st floor - martigny
DESCRIPTION
NEW PROMOTION in Martigny – Rue des Prés-du-Moulin
BESTA Immobilier SA offers you this new development located in a quiet, residential area, close to the Martigny train station and near the banks of the Dranse for your outdoor walks.
Building features:
* Ideal location on Rue des Prés-du-Moulin, close to the train station, highway entrances, shops while being in a quiet street ensuring easy access to the surrounding nature.
* The building is equipped with photovoltaic panels for a redu...
Property details
- Available from
- By agreement
- Rooms
- 3.5
- Construction year
- 2026
- Floor
- 1st




