Wohnung mieten - Münsterplatz, 8200 Schaffhausen
Warum Sie diese Immobilie lieben werden
Geräumige Terrasse im Hinterhof
Einzigartige Mischung aus Alt und Neu
Privater Sauna im obersten Stock
Besichtigung vereinbaren
Besichtigung buchen
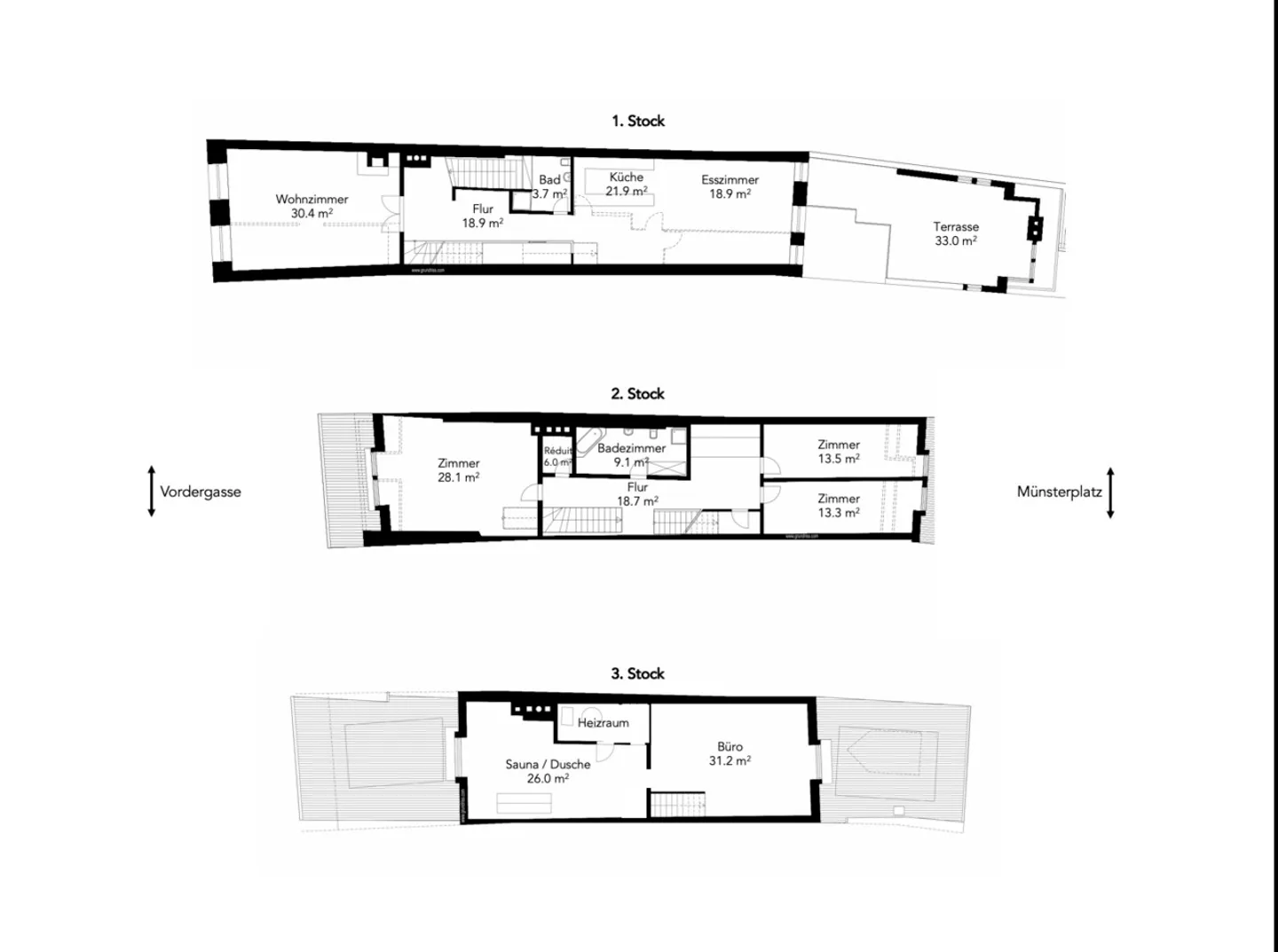
Grosse altstadtwohnung an zentraler lage
An der Vordergasse 35 vermieten wir eine wunderschöne Wohnung mit riesiger Terrasse im Hinterhof.
Die Kombination aus historischen Bauelementen (Stuckatur, Holzbalken, etc.) und modernen Materialien und Einrichtungen zeichnet diese Wohnung aus. Die Wohnung erstreckt sich über 3 Etagen mit insgesamt 5 Zimmern und einer eigenen Sauna im obersten Geschoss.
Die Wohnung eignet sich wunderbar für Familien oder WGs, welche auf der Suche nach einer zentralen und grosszügigen Wohnung in der Altstadt.
S...
Kostenaufstellung
- Nettokosten
- CHF 3’300
- Zusätzliche Kosten
- CHF 400
- Gesamtkosten
- CHF 3’300
Immobiliendetails
- Verfügbar ab
- 01.11.2025
- Zimmer
- 6
- Wohnfläche
- 217 m²



