Wohnung mieten - Chemin Des Argilles, 2088 Cressier NE
Warum Sie diese Immobilie lieben werden
Offener Wohnbereich
Balkon mit Weinbergblick
Neu gebaut 2024
Besichtigung vereinbaren
Besichtigung buchen
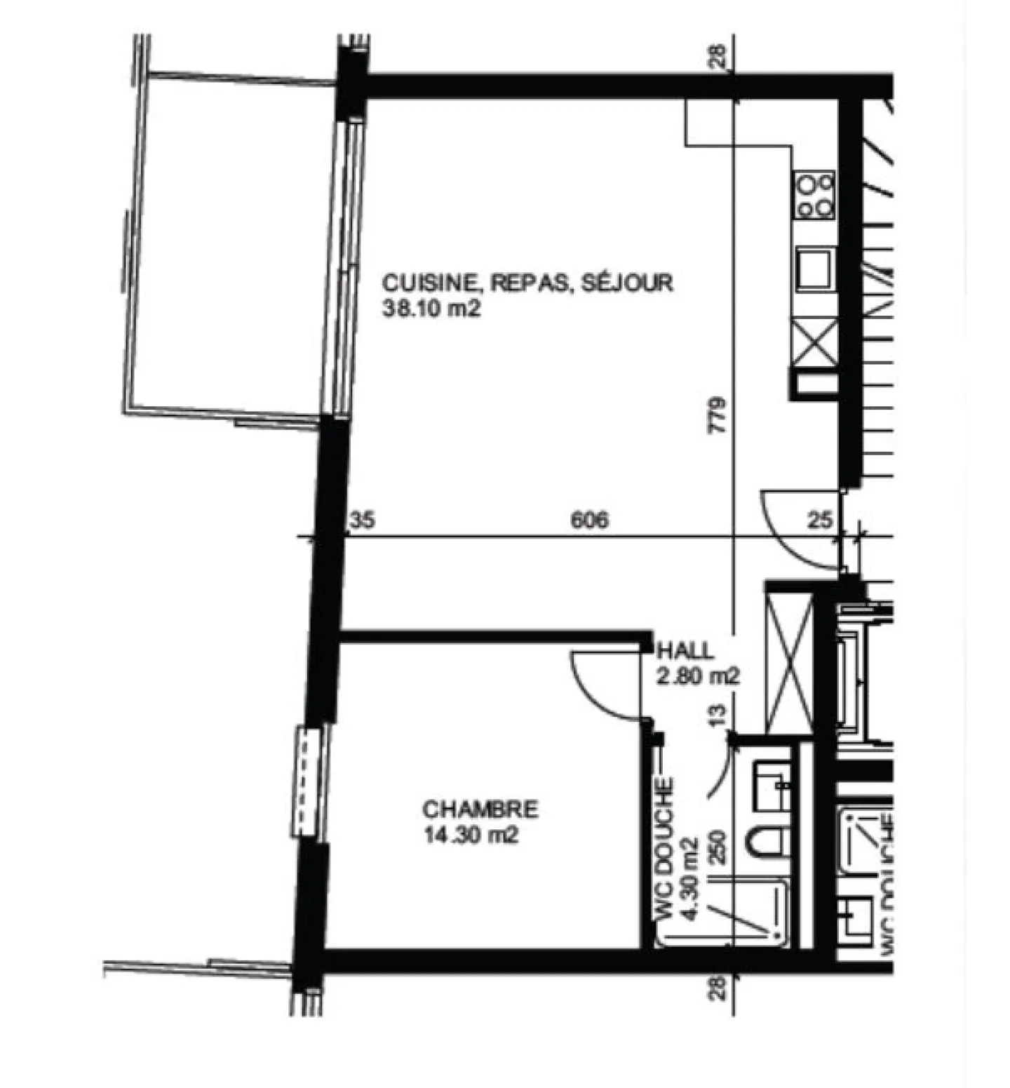
Schöne 2,5-zimmer-wohnung, wie neu
In einer 2024 erbauten Residenz im Herzen des Neuenburger Weinbaugebiets, nicht weit vom Zentrum von Cressier entfernt, umfasst diese sehr schöne 2,5-Zimmer-Wohnung mit allem Komfort: ein Wohnzimmer, eine offene Einbauküche, einen Essbereich, eine Diele, ein Schlafzimmer, ein Duschbad, einen Balkon und einen Keller.
Es besteht die Möglichkeit, einen Parkplatz in der Gemeinschaftsgarage des Gebäudes für CHF 120.-/Monat zu mieten. Stellplätze für Zweiräder sind ebenfalls für CHF 20.-/Monat verfügba...
Kostenaufstellung
- Nettokosten
- CHF 1’495
- Zusätzliche Kosten
- CHF 195
- Gesamtkosten
- CHF 1’495
Immobiliendetails
- Verfügbar ab
- Nach Vereinbarung
- Zimmer
- 2.5
- Badezimmer
- 1
- Baujahr
- 2024
- Wohnfläche
- 59 m²
- Etage
- 1.



