Bürofläche mieten - 5070 Frick
Warum Sie diese Immobilie lieben werden
Flexible Raumeinteilungen
Moderne Architektur
Öffentliches Parking vorhanden
Besichtigung vereinbaren
Besichtigung mit Rebmann buchen
"blaie" frick: ihre zukunft für ihr business
Gehören Sie zu den Unternehmern, welche ihre geschäftliche Zukunft rechtzeitig, langfristig und überlegt planen?
Dann sollten Sie sich mit dem Projekt Blaie in Frick näher befassen. In unmittelbarer Nähe zum Bahnhof SBB mit hervorragenden Verbindungen nach Basel und Zürich und guter Sichtbarkeit entsteht dieses neue Gewerbezentrum, das neue Massstäbe setzen wird.
Objekt
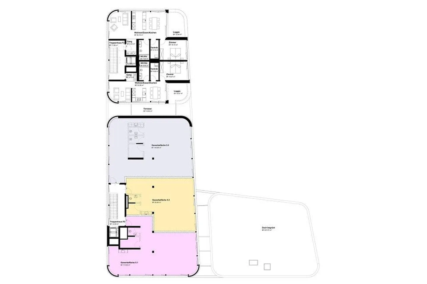
Es werden unterschiedliche Flächen angeboten, die sich Ihren Bedürfnissen flexibel anpassen lassen:
- Gewerbeflächen von 74 bis ü...
Immobiliendetails
- Verfügbar ab
- Nach Vereinbarung
- Baujahr
- 2026



