Gewerbe mieten - Nordringstrasse 22, 4702 Oensingen
Warum Sie diese Immobilie lieben werden
Ideal für Logistik und Dienstleistungen
Vollständig eingezäunt für Sicherheit
Schneller Zugang zu Grossstädten
Besichtigung vereinbaren
Besichtigung mit Beat buchen
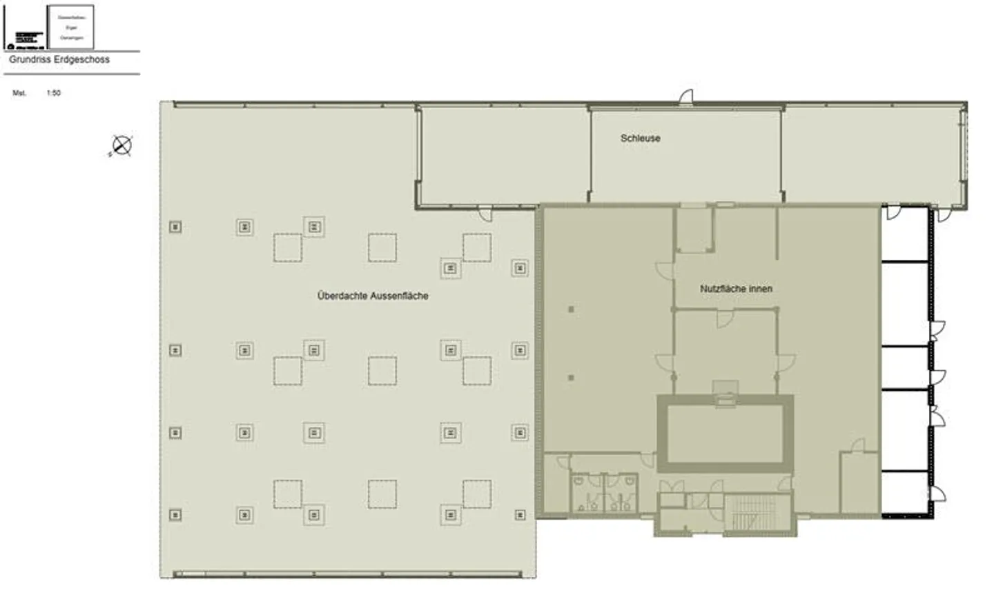
Gewerbeflächen mit vielseitiger nutzungsmöglichkeit - an zentraler ...
Die Liegenschaft an der Nordringstrasse 22 in Oensingen überzeugt durch ihre verkehrstechnisch optimal erschlossene Lage, direkt an der Hauptverkehrsachse A1 und in unmittelbarer Nähe zum Autobahnanschluss. Dank der zentralen Position sind die Städte Bern, Basel, Zürich und Luzern in kurzer Zeit erreichbar. Der Bahnhof Oensingen liegt nur rund 1.3 km entfernt.
Die Räumlichkeiten bieten überdurchschnittlich vielseitige und flexible Nutzungsmöglichkeiten und eignen sich ideal für verschiedene gewer...
Immobiliendetails
- Verfügbar ab
- Nach Vereinbarung
- Baujahr
- 2007



