Mehrfamilienhaus mieten - 9472 Grabs
Warum Sie diese Immobilie lieben werden
Heller Wohnbereich
Moderne offene Küche
Sonnige Loggia mit Holzboden
Besichtigung vereinbaren
Besichtigung buchen
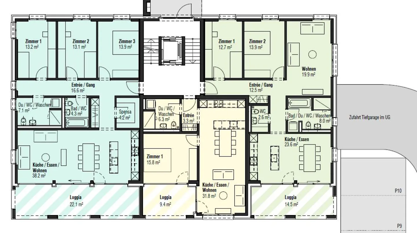
Attraktive 2.5 zimmerwohnung in grabs
Diese attraktive 2.5 Zimmerwohnung befindet sich in einem hochwertigen Mehrfamilienhaus am nördlichen Dorfrand von Grabs. Das Mehrfamilienhaus liegt in einem ruhigen Einfamilienhausquartier. Sowohl Einkaufsmöglichkeiten als auch öffentliche Verkehrsmittel sind in wenigen Gehminuten erreichbar.
Raumaufteilung:
* Eingangsbereich mit praktischem Einbauschrank
* heller Wohn- und Essbereich
* offene, moderne Küche mit Kombi-Steamer
* Badezimmer mit Dusche
* eigener Waschturm (WM/TU) in der Wohnung
* sonnige...
Kostenaufstellung
- Nettokosten
- CHF 1’500
- Zusätzliche Kosten
- CHF 130
- Gesamtkosten
- CHF 1’500
Immobiliendetails
- Verfügbar ab
- Nach Vereinbarung
- Zimmer
- 2.5
- Badezimmer
- 1
- Baujahr
- 2017


