Wohnung kaufen - Kirchweg, 8245 Feuerthalen
Warum Sie diese Immobilie lieben werden
Charmante Holzbalken
Sonniger Südwestbalkon
Geräumige Galeriefläche
Besichtigung vereinbaren
Besichtigung buchen
Wohnen unterm dach – stilvoll, hell, einzigartig
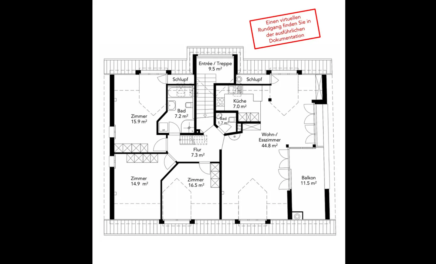
Am Kirchweg in Feuerthalen verkaufen wir eine 4.5 Zimmer Maisonette-Eigentumswohnung. Zentral gelegen sind Sie nur einen Katzensprung von Einkauf und ÖV entfernt. Ihre Kinder freuen sich zudem über einen gleichzeitig kurzen und sicheren Schulweg. Der Bahnfahrplan ist perfekt auf die Pendler nach Zürich abgestimmt. Vom Bahnhof Feuerthalen, zu Fuss nur 450m entfernt, treffen Sie bereits nach 45 Minuten am Zürich HB ein. In der Freizeit finden Sie das Naherholungsgebiet Cholfirst sowie den Rhein zu...
Immobiliendetails
- Verfügbar ab
- Nach Vereinbarung
- Zimmer
- 4.5
- Baujahr
- 2005
- Wohnfläche
- 143 m²



