Wohnung kaufen - 6993 Iseo
Warum Sie diese Immobilie lieben werden
Ruhige Gartenansichten
Nahe der Stadt Lugano
Geräumige Wohnbereiche
Besichtigung vereinbaren
Besichtigung buchen
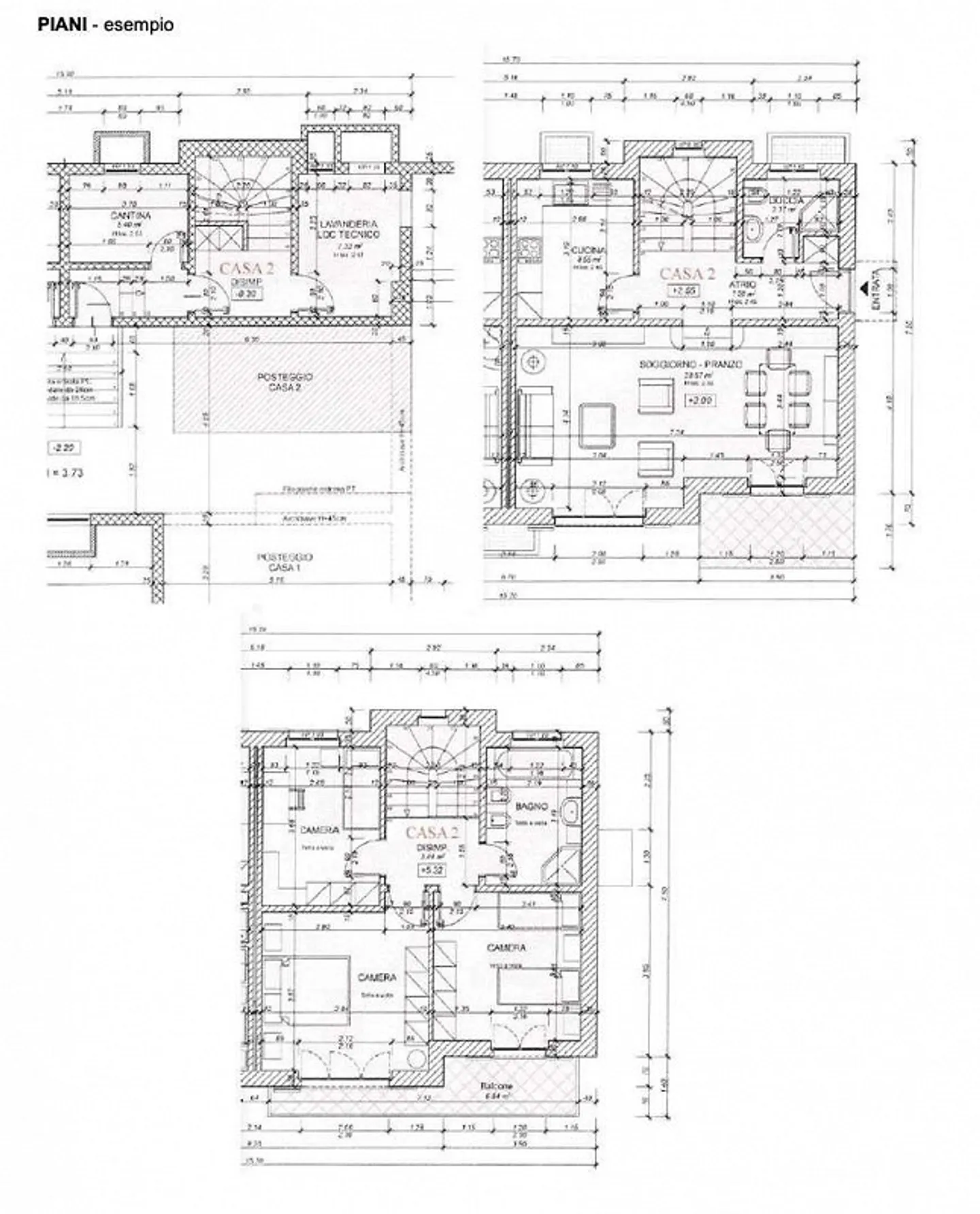
Teil einer doppelhaushälfte zur verkauf, 4,5 zimmer
Malcantone, im faszinierenden Kern von Iseo, entsteht die Residenz Campìa.
Sie besteht aus zwei Doppelhaushälften und einem kleinen Apartmenthaus mit vier Wohnungen.
Ideales Hauptwohnhaus für einen Kern von vier Personen, die Stille und Kontakt mit der Natur lieben, nur wenige Kilometer vom Stadtzentrum von Lugano entfernt, das weniger als 15 km entfernt ist.
Die Wohnung ist auf drei Ebenen verteilt.
Das Untergeschoss bietet den Eingang vom Autorama, den Heizraum und einen Abstellraum.
Im Oberge...
Immobiliendetails
- Verfügbar ab
- 22.01.1032
- Zimmer
- 4.5
- Baujahr
- 2014
- Wohnfläche
- 137 m²
- Grundstücksfläche
- 90 m²




