Mehrfamilienhaus kaufen - Untere Storchenhofstrasse, 5044 Schlossrued
Warum Sie diese Immobilie lieben werden
Ruhige Lage in Sackgasse
Umgeben von Natur
Nahe zu lokalen Annehmlichkeiten
Besichtigung vereinbaren
Besichtigung buchen
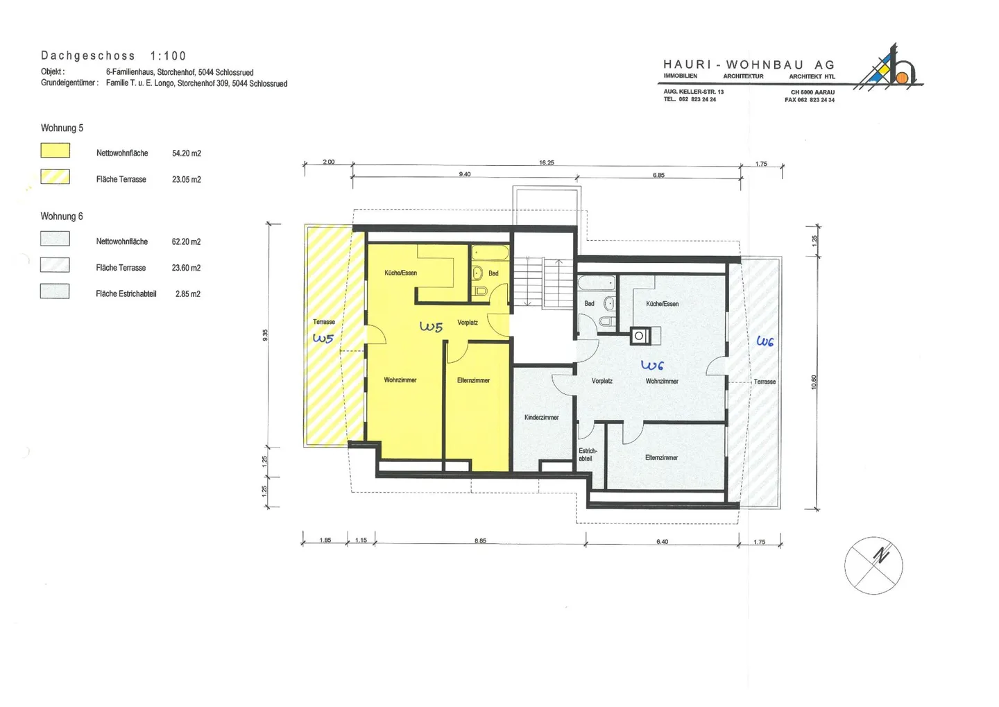
Vollvermietetes mehrfamilienhaus mit 6 wohneinheiten zu verkaufen
Das Mehrfamilienhaus mit 6 Wohneinheiten liegt im östlichen Dorfteil von Schlossrued.
Die Liegenschaft ist umgeben von Einfamilienhäusern und Landwirtschaftszone und liegt an leicht erhöhter Lage, in einem ruhigen Quartier in einer Sackgasse und profitiert von einer schönen Aussicht ins Grüne.
Die Nähe zu Schöftland ist positiv hervorzuheben. Im Dorf selber finden Sie die alltäglichen Produkte im Dorfladen oder der Metzgerei.
Die Grundschule bis und mit 6. Klasse kann in Schlossrued besucht werden.
Immobiliendetails
- Verfügbar ab
- Nach Vereinbarung
- Baujahr
- 1973
- Wohnfläche
- 445 m²
- Grundstücksfläche
- 1258 m²



